Herzlich Willkommen bei EICHLER IMMOBILIEN. Ihr persönlicher Partner beim Immobilienverkauf. Für Coswig, Radebeul, Dresden und Umgebung!
Alle aktuellen Immobilienangebote finden Sie unter www.eichlerimmobilien.de
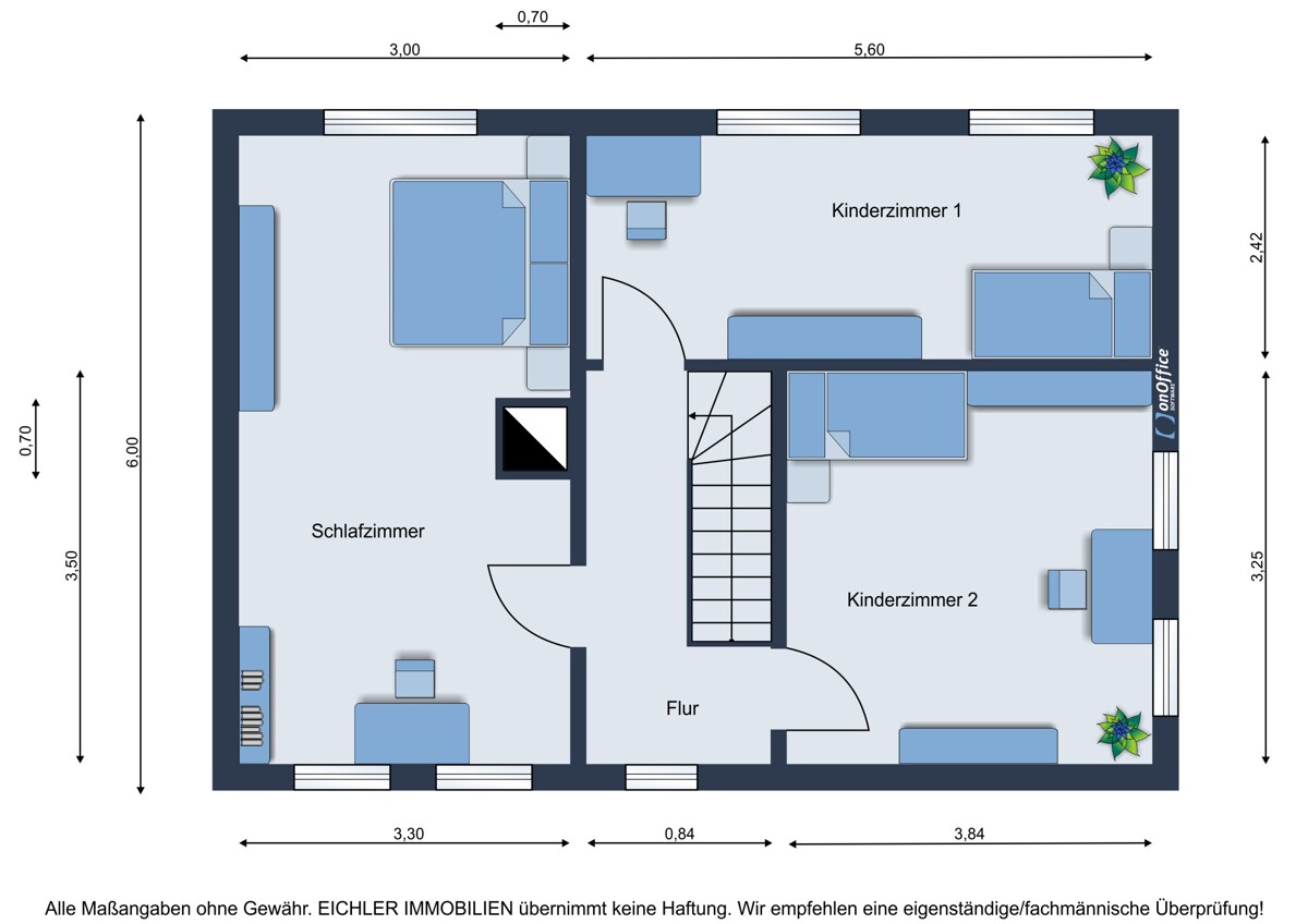
Dieses Exposé ist eine Vorabinformation. Vorstehende Angaben beruhen auf Auskünften der Eigentümer, wir übernehmen hierfür keine Haftung! Ein Rechtsanspruch auf einen notariellen Kaufvertrag kommt erst durch Gegenzeichnung des selbigen durch den Eigentümer zustande. Offenlegung der Doppeltätigkeit: Der Makler hat mit der Verkäuferseite einen provisionspflichtigen Maklervertrag in gleicher Provisionshöhe abgeschlossen (§ 656c BGB) und tritt damit als neutraler Vermittler auf.
Die Maklerprovision für den Käufer beträgt 5.950,00 € (EUR) inkl. 19,00% MwSt. (Festprovision).
Da wir für den Verkauf dieser Immobilie exklusiv beauftragt sind, ist eine direkte Kontaktaufnahme mit dem Verkäufer nicht erwünscht. Das Betreten der Liegenschaft ist ausschließlich nach Terminvereinbarung gestattet. Bitte achten Sie die Privatsphäre der Verkäufer.
Wir bitten Sie um Verständnis, dass wir Ihre Anfrage und einen Besichtigungswunsch ausschließlich nach Angabe Ihrer vollständigen Kontaktdaten bearbeiten können. Vielen Dank!















